John William Hodkinson: 1869-1942 – eighteen homes
John William Hodkinson: 1869-1896 – birth to marriage
John William Hodkinson: 1896-1942 – marriage to death
John William Hodkinson: 1900-1917 – three times a soldier
John William Hodkinson: 1869-1942 – eighteen homes ... this page

This is Adswood Lane West, Stockport and is the location of one of the Hodkinson homes. (Photograph: Samuel Hodkinson.)
- Parents: James Hodkinson and Sarah Ellen Hodkinson (remarried as Kenyon)
- Born: Monday, 20th September 1869
- Married: Saturday, 4th April 1896 (age 26 years and 6 months)
- Four children: all boys
- Died: Monday, 2nd February 1942 (age 72 years and 4 months)
John William Hodkinson's eighteen known homes
All on one page – the eighteen known homes of John William Hodkinson. The information is based on birth, marriage and death certificates, census returns, electoral rolls and family knowledge. John William may have lived in other homes in addition to those detailed below.
In many cases, it is not clear how long John William lived at the various addresses, but the known dates are given.
Some of the information below is also found on other pages about other Hodkinsons.
To begin with, a summary ...
Next, the details ...
(With the maps, click on a map for a larger version. They are reproduced with the permission of the National Library of Scotland.)

185 Church Street, Ashton-under-Lyne
Known dates of the Hodkinsons living here: 1868-1869
This home was occupied by:
- James Hodkinson (born 1841), head of household;
- Sarah Ellen Hodkinson (born 1843), wife of James Hodkinson;
- Samuel Hodkinson (born 1868), first son of James Hodkinson and Sarah Ellen Hodkinson; and
- John William Hodkinson (born 1869), second son of James Hodkinson and Sarah Ellen Hodkinson.
This extract is from an OS map which was surveyed in 1891-92 and published in 1893. The Hodkinsons' home at 185 Church Street was tiny, but fortunately there was a maximum of four in the family when they lived there. The colour photograph below was taken as indicated on the map, looking east.
This photograph shows north-facing houses on Church Street in the 1960s, at the junction with Mill Lane, during the time that the area was being redeveloped. A century earlier, the Hodkinsons probably lived in a house similar to those shown. (Photograph: acknowledgements to Tameside Local Studies and Archives.)
Some sections of Church Street remain. This section is at the western end, not too far from St Peter’s, and is now called June Street. The bend in the street leads to Margaret Street. Originally, Church Street ran in a straight line from this section all the way to St Michael’s Church. The Hodkinsons' home – 185 Church Street – was located more or less where the tree is near to the red car. (Photograph: Samuel Hodkinson.)

45 Welbeck Street, Ashton-under-Lyne
Known dates of living here: 1871-1872
The Hodkinson home at 45 Welbeck Street (on what is now Welbeck St South) was occupied, for some or all of the time, by:
- James Hodkinson (born 1841), head of household;
- Sarah Ellen Hodkinson (born about 1843), wife of James Hodkinson;
- Samuel Hodkinson (born 1868), first son of James Hodkinson and Sarah Ellen Hodkinson;
- John William Hodkinson (born 1869), second son of James Hodkinson and Sarah Ellen Hodkinson;
- Ellen Hodkinson (born 1872), first daughter of James Hodkinson and Sarah Ellen Hodkinson; and
- Eliza Birtles (born 1845), sister of Sarah Ellen Hodkinson and lived at this address for at least six months in 1871.
The Hodkinsons' home on Welbeck Street was in the place as indicated on the map and photograph. (Photograph: Samuel Hodkinson.)
31 John Street, Ashton-under-Lyne
Known dates of living here: 1874-1878
This home was occupied by, for some or all of the time, by:
- James Hodkinson (born 1841), head of household;
- Sarah Ellen Hodkinson (born about 1843), wife of James Hodkinson;
- Samuel Hodkinson (born 1868), first son of James Hodkinson and Sarah Ellen Hodkinson;
- John William Hodkinson (born 1869), second son of James Hodkinson and Sarah Ellen Hodkinson;
- Ellen Hodkinson (born 1872 and who died in 1874 at this address), first daughter of James Hodkinson and Sarah Ellen Hodkinson;
- Eliza Ellen Hodkinson (born 1875 and who died in 1876 at this address), second daughter of James Hodkinson and Sarah Ellen Hodkinson; and
- James Hodkinson (born 1878), third son of James Hodkinson and Sarah Ellen Hodkinson.
Much of what is shown in the map above has been gone for a long time, including a great deal of John Street which has been replaced with new housing layouts, including the row of terraced houses where the Hodkinsons had their home. One of the new streets (not so new now!) is south-west facing Westgate Street, the end house of which (no.9) has grey fencing around its front garden, as can be seen on the photograph. The Hodkinsons' home on John Street more or less occupied the location of the front garden of no. 9, but with the front facing north-west. Running parallel to John Street was/is Hertford Street, the houses of which have been replaced by a long grassy strip with its boundary marked by fencing with charming finger-type finials. (Photograph: Samuel Hodkinson.)

25 Whittington Court, Ashton-under-Lyne
Known dates of living here: 1880-1881
The Hodkinsons lived in Whittington Court from at least 1880 to at least 1881. Whittington Court was accessed from Whittington Street.
The Hodkinsons' home at 25 Whittington Court was occupied, for some or all of the time, by:
- James Hodkinson (born 1841), head of household;
- Sarah Ellen Hodkinson (born about 1843), wife of James Hodkinson;
- Samuel Hodkinson (born 1868), first son of James Hodkinson and Sarah Ellen Hodkinson;
- John William Hodkinson (born 1869), second son of James Hodkinson and Sarah Ellen Hodkinson;
- James Hodkinson (born 1878), third son of James Hodkinson and Sarah Ellen Hodkinson; and
- Eliza Jane Hodkinson (born 1880), third daughter of James Hodkinson and Sarah Ellen Hodkinson.
This extract is from the same OS map as for John Street above. The colour photographs below were taken in the directions as indicated on the map. Although the number of the home on Whittington Court is known, I have not been able to link it exactly to a house on the map.
The first photograph is looking east along Whittington Street, as indicated by the long arrow on the map. The entrance to Whittington Court was to be found on the left of the photo, to the left of the lamppost. On the right of Whittington Street, Junction Mills once dominated the scene. The second photograph provides another view of some dreary brickwork and what looks like asbestos cladding. The narrow entrance to Whittington Court was more or less as shown on the image and by the short arrow on the map. (Photographs: Samuel Hodkinson.)
1 Headfield Street, Ashton-under-Lyne,
9 Headfield Street, Ashton-under-Lyne
Known date of living on Headfield Street: 1881
The Hodkinsons lived at 1 Headfield Street for part of 1881 and at 9 Headfield Street for at least the last four months of 1881.
The two homes on Headfield Street were occupied, for some or all of the time, by:
- Sarah Ellen Hodkinson (born 1843), widow and head of household;
- Samuel Hodkinson (born 1868), first son of James Hodkinson and Sarah Ellen Hodkinson;
- John William Hodkinson (born 1869), second son of James Hodkinson and Sarah Ellen Hodkinson; and
- Eliza Jane Hodkinson (born 1880), third daughter of James Hodkinson and Sarah Ellen Hodkinson.
This extract is from the same OS map (surveyed in 1849) as used twice above. The two photographs below were taken in the direction as indicated on the map. The Hodkinsons lived in back-to-back houses in Whittington Court and at 9 Headfield Street, and their house on John Street looks to be a similar size to that of a back-to-back. Later maps show that these and other similar properties had been demolished and replaced with terraced housing. Maybe demolition was looming in 1881 and this is why the Hodkinsons left 9 Headfield Street.
The black and white photograph is of Headfield Street in the 1960s. Of the two images, which is the better view? The life-expired houses on Headfield Street or the replacement building in the colour photograph? (Colour photograph: Samuel Hodkinson. Black and white photograph: acknowledgements to Tameside Local Studies and Archives.)

61 Park Street, Ashton-under-Lyne
Known dates of living here: 1883-1884
The Hodkinsons lived at 61 Park Street from at least 1883 to at least 1884. The family grew in size when widow Sarah Ellen Hodkinson married widower George Albert Kenyon. At 61 Park Street, the occupants were:
- George Albert Kenyon, head of household;
- Sarah Ellen Kenyon (Hodkinson) (born 1843), now in her second marriage;
- Samuel Hodkinson (born 1868), first son of James Hodkinson and Sarah Ellen Hodkinson;
- John William Hodkinson (born 1869), second son of James Hodkinson and Sarah Ellen Hodkinson;
- James Henry Kenyon (born 1883), only son of George Albert Kenyon and Sarah Ellen Kenyon but Sarah Ellen’s fourth son; and
- Hannah Kenyon (born 1884), only daughter of George Albert Kenyon and Sarah Ellen Kenyon, but Sarah Ellen’s fourth daughter.
This extract is from an OS map which was surveyed in 1891-92 and published in 1893. The Hodkinsons' home at 61 Park Street was at the junction with Cavendish Street. The colour photograph below was taken in the direction as indicated on the map.
Not much of Park Street remains, including the house where the Hodkinson-Kenyon family lived. In terms of the location of 61 Park Street, the pampas grass, as indicated with the red rectangle, is well positioned as it is more or less where the north-west facing front door of the house was. (Photograph: Samuel Hodkinson.)

11 Bower Row, Stalybridge
Known date of living here: 1891-1896
Bower Row became Bower Grove when the area was redeveloped.
Living in this back-to-back house were, for some or all of the time:
- George Albert Kenyon, head of household;
- Sarah Ellen Kenyon (Hodkinson) (born 1843), now in her second marriage;
- Samuel Hodkinson (born 1868), first son of James Hodkinson and Sarah Ellen Hodkinson;
- John William Hodkinson (born 1869), second son of James Hodkinson and Sarah Ellen Hodkinson;
- James Henry Kenyon (born 1883), only son of George Albert Kenyon and Sarah Ellen Kenyon but Sarah Ellen’s fourth son; and
- Hannah Kenyon (born 1884), only daughter of George Albert Kenyon and Sarah Ellen Kenyon, but Sarah Ellen’s fourth daughter.
This extract from an Ordnance Survey Map, revised in 1896-97 and published in 1898, shows the short block of back-to-back houses where the Hodkinson/Kenyon family lived. (The light-yellow edges around some parts of the map are OS markings indicating parcels of land which have been grouped together, rather than being recorded separately.)
The Hodkinson/Kenyon family lived in a back-to-back house at 11 Bower Row. Using georeferenced maps from the National Library of Scotland, it looks as though the location was more or less in the front two-thirds of the garden of 13 Bower Grove, which is the end-terrace house in the photograph. 11 Bower Row was certainly a tiny house for six people. (Photograph: Samuel Hodkinson.)

11 St Paul’s Street, Stalybridge
Known dates of living here: 1896-1899
The Hodkinsons lived on St Paul's Street from 1896 to 1899.
11 St Paul’s Street, Stalybridge was a newly built house and it does appear that the Hodkinsons were the first occupiers. It must have seemed like a dream - a solid and brand-new house, with the latest interior decor and fixtures, including a good fireplace. It was just the place to start a family.
This extract from an Ordnance Survey map is the same as the one used above for Bower Row. John William Hodkinson married in April 1896, while still living at 11 Bower Row. He and his wife most likely moved to 11 St Paul's Street straight after their marriage. Their first child was born at the new address in 1897. With a revised date on the map of 1896-97, but no.11 not yet built, then it seems likely that the map of this part of Stalybridge was revised in early 1896, before the house was completed and before the Hodkinsons moved in. Interestingly, this indicates that John William Hodkinson and his wife were the first occupants of the new house. What a change from 11 Bower Row!
They may not be easy to drive over and are frowned upon by some Health and Safety zealots, but the road surface of setts (generally, but incorrectly, known as cobblestones) have more character than tarmac and are an excellent way to keep traffic speeds down, without the necessity of installing ugly speed bumps. This is a view of St Paul's Street, looking north from Demesne Street, as indicated by the arrow on the map. (Photograph: Samuel Hodkinson.)
The house with the brown door is 11 St. Paul's Street, Stalybridge, the home of the Hodkinson family from at least 1896-1899, as indicated by the small arrow on the map. The Hodkinson family may well have been the first family to live at no. 11. Move on about 130 years and many of the once brand-new houses on the street are starting to look their age, with brickwork and roofs in need of attention. (Photographs: Samuel Hodkinson.)

22 Combermere Street, Dukinfield
Known date of living here: 1899
The Hodkinson family left Stalybridge between January and July 1899 and settled in Combermere Street, Dukinfield, which was about a twenty-minute walk away from the streets that John William Hodkinson knew as a child.
This home was occupied by:
- John William Hodkinson (born 1869), head of household;
- Frances Eliza Hodkinson (born 1872), wife of John William Hodkinson;
- George Albert Hodkinson (born 1897), first son of John William Hodkinson and Frances Eliza Hodkinson; and, possibly
- Vincent Hodkinson (born 1899), second son of John William Hodkinson and Frances Eliza Hodkinson. Vincent died in March 1899 away from home and it is not known whether or not the Hodkinson family were still living in Stalybridge or had moved to the Dukinfield address when Vincent was still alive.
This extract is from an Ordnance Survey map which has a revised date of 1907 and a publication date of 1910. The house occupied by the Hodkinsons at 22 Combermere Street was demolished many decades ago. The short arrow on the map indicates the direction of the photograph.
The location of the Hodkinsons' home at 22 Combermere Street, Dukinfield is now part of a car parking space, a stretch of pavement and a shrub. (Photograph: Samuel Hodkinson.)
76 Old Road, Stockport
Known date of living here: 1899
The Hodkinsons lived at 76 Old Road for at least part of 1899 and maybe a bit of 1900. One of the interesting features of this move is that, after a gap of about 33 years, the Hodkinsons had returned to their ancestral town of Stockport.
This home was occupied by:
- John William Hodkinson (born 1869), head of household;
- Frances Eliza Hodkinson (born 1872), wife of John William Hodkinson; and
- George Albert Hodkinson (born 1897), first son of John William Hodkinson and Frances Eliza Hodkinson.
For some of the second half of 1899 and maybe a bit of 1900, the Hodkinsons lived at 76 Old Road, Stockport. The location of the home is marked in red on the above map which has a revised date of 1917. Next to the Hodkinsons at no. 74, on the corner of Old Road and Gordon Street, was a grocery shop – that was handy! In 1901, the shop was run by 53-year-old Elizabeth Parker, assisted by daughter Ada, who was 20. Elizabeth’s husband was also 53 and was a school caretaker. All Victorian housing on Old Road was demolished and replaced by new stuff many decades ago; only a section of Old Road itself remains. The green fencing on the modern photograph is roughly where the front doors of the houses were, as shown on the black and white photograph.
34 Victoria Road, Offerton, Stockport
Known dates of living here: within 1899-1900
After their short stay at 76 Old Road, the Hodkinsons moved to 34 Victoria Road Offerton, maybe in the final months of 1899, or maybe in early 1900, and had moved again by July 1900 to Ardern Street.
This home was occupied by:
- John William Hodkinson (born 1869), head of household;
- Frances Eliza Hodkinson (born 1872), wife of John William Hodkinson; and
- George Albert Hodkinson (born 1897), first son of John William Hodkinson and Frances Eliza Hodkinson.
The map above (which has a revised date of 1908 and was published in 1922) shows the location of the Hodkinsons' home at 34 Victoria Street, Offerton, Stockport. The Hodkinsons lived here sometime around late 1899 to early 1900.
34 Victoria Road, Stockport – the house with the dark blue front door – is where three Hodkinsons lived for a few months between 1899-1900. (Photograph: Samuel Hodkinson.)
56 Ardern Field Street, Hillgate, Stockport
Known dates of living here: 1900-1901
The Hodkinsons lived at 56 Ardern Field Street for part of 1900 and were there for at least up to July 1901 when John Hodkinson was born at the address.
This home was occupied by:
- John William Hodkinson (born 1869), head of household;
- Frances Eliza Hodkinson (born 1872), wife of John William Hodkinson;
- George Albert Hodkinson (born 1897), first son of John William Hodkinson and Frances Eliza Hodkinson; and
- John Hodkinson (born 1901), third son of John William Hodkinson and Frances Eliza Hodkinson.
This extract is from an OS map which was revised in 1892-93 and published in 1895. The Hodkinsons lived at 56 Ardern Field Street. Next door, at no.54, lived the Kenyon family, which included John William Hodkinson's mother and stepfather.
The photograph was taken on a cold winter's afternoon with an early low sun bringing some light to a depressing view of the location of Ardern Field Street. Ardern Field Street no longer exists as a street name recognised by the Post Office, although it is on Google Street View. Some of the route of the street still exists and this view of Ardern Field Street is looking towards Hillgate. No. 56 was to be found on the left, just past the first lamppost. (Photograph: Samuel Hodkinson.)

4 Hurst Street, Reddish
Known dates of living here: 1903-1905
The OS maps I like to use are those with a scale of 25 inches to one mile, and with a survey or revised date which relates closely to whatever the text is about. In this case, with the Hodkinsons living at 4 Hurst Street from at least 1903 to at least 1906, no date-relevant OS map is available that does not split Hurst Street between two maps. Acknowledgements, therefore, go to OpenStreetMap.org for the modern main map. The closer view of part of Hurst Street is from one of the OS maps which splits the street, and which has a revised date of 1916.
The first photograph is a view of Hurst Street taken from Broadstone Road. Number 4 is in a row of terrace houses on the right-hand side of Hurst Street, shown closer in the second photograph, and is the one which is second from the right. (Photographs: Samuel Hodkinson.)
The Hodkinsons lived at 4 Hurst Street from at least July 1903 to at least June 1905, when Steven Hodkinson was born at the address.
This home was occupied by:
- John William Hodkinson (born 1869), head of household;
- Frances Eliza Hodkinson (born 1872), wife of John William Hodkinson;
- George Albert Hodkinson (born 1897), first son of John William Hodkinson and Frances Eliza Hodkinson;
- John Hodkinson (born 1901), third son of John William Hodkinson and Frances Eliza Hodkinson; and
- Steven Hodkinson (born 1905), fourth son of John William Hodkinson and Frances Eliza Hodkinson.

174 Gorton Road, Reddish, Stockport
Known dates of living here: 1906-1907
The Hodkinsons lived at 174 Gorton Road, Reddish, Stockport, from June or July 1906 for an unknown length of time up to no later than July 1907. The OS map was revised in 1916 and published in 1922.
174 Gorton Road has white and black panelling above the bay window. The arrow on the map above shows the direction of the image. (The photograph was taken on a cold winter's morning by Samuel Hodkinson.)
The Hodkinsons moved to 174 Gorton Road around June or July 1906, and lived there for up to about a year.
This home was occupied by five Hodkinsons:
- John William Hodkinson (born 1869), head of household;
- Frances Eliza Hodkinson (born 1872), wife of John William Hodkinson;
- George Albert Hodkinson (born 1897), first son of John William Hodkinson and Frances Eliza Hodkinson;
- John Hodkinson (born 1901), third son of John William Hodkinson and Frances Eliza Hodkinson; and
- Steven Hodkinson (born 1905), fourth son of John William Hodkinson and Frances Eliza Hodkinson.

207 Shaw Heath, Stockport
Known dates of living here: within 1907-1908
This extract is from an OS map which was revised in 1892-93 and published in 1895. The short arrow on the map shows the direction in which the photograph below was taken.
The Hodkinsons lived at 207 Shaw Heath, Stockport (the house with railings) for an unknown length of time between July 1907 and July 1908. The stone plaque which is just below the roof line to the left of the satellite dish has the inscription for this row of six terraced houses as “Heath Hill Terrace 1869”. 1869 … this was the year that John William Hodkinson was born, so he might have been pleased to live in a row of houses with a plaque which displayed his year of birth. There are still some large sections of nice original Flemish bond brickwork on the houses, while other areas have suffered from decades of weathering, extensive re-pointing, and replacement of bricks which do not tie in with the original colour scheme. (Photograph: Samuel Hodkinson.)
The Hodkinsons moved directly from 174 Gorton Road to 207 Shaw Heath. Their occupancy was for an unknown period between July 1907 to July 1908.
This home was occupied by five Hodkinsons:
- John William Hodkinson (born 1869), head of household;
- Frances Eliza Hodkinson (born 1872), wife of John William Hodkinson;
- George Albert Hodkinson (born 1897), first son of John William Hodkinson and Frances Eliza Hodkinson;
- John Hodkinson (born 1901), third son of John William Hodkinson and Frances Eliza Hodkinson; and
- Steven Hodkinson (born 1905), fourth son of John William Hodkinson and Frances Eliza Hodkinson.

78 Osborne Road, Shaw Heath, Stockport.
Known date of living here: 1909
The location of 78 Osborne Road is indicated on this extract from an OS map with a revised date of 1907 and which was published, eventually, in 1934. The black arrows relate to the photographs below.
The Hodkinsons lived at 78 Osborne Road for at least some of 1909. Maybe they stayed there until they moved to Adswood Lane West in about 1911, which is their next known address. The first photograph is looking north up Osborne Road from Adswood Lane East, which is indicated by the long arrow on the map. The shorter arrow on the map relates to the second photograph, with the house with the blue door being the Hodkinsons' home. (Photographs: Samuel Hodkinson.)
The Hodkinsons lived at 78 Osborne Road during at least 1909. The home was occupied by:
- John William Hodkinson (born 1869), head of household;
- Frances Eliza Hodkinson (born 1872), wife of John William Hodkinson;
- George Albert Hodkinson (born 1897), first son of John William Hodkinson and Frances Eliza Hodkinson;
- John Hodkinson (born 1901), third son of John William Hodkinson and Frances Eliza Hodkinson; and
- Steven Hodkinson (born 1905), fourth son of John William Hodkinson and Frances Eliza Hodkinson.
61 Adswood Lane West, Shaw Heath, Stockport
Known dates of living here: John William 1911-1942; other Hodkinsons up to 1959
The location of 61 Adswood Lane West is indicated on this extract from an OS map with a revised date of 1934 and which was published two years later. The black arrows relate to the photographs below.
The first photograph dates from 1973 and is looking west along Adswood Lane West, as indicated by the long arrow on the map. The short arrow on the map shows the direction of the second photograph which was taken over 50 years later. 61 Adswood Lane West is the house immediately to the right of the drainpipe, and, at the time of writing this, has the bright yellow door as seen in the newer photograph. As with many terraced houses, this set of six houses was given a name – Hulse Terrace – which is on the plaque on the wall above the yellow and white doors. The garden wall was largely rebuilt in the 1930s by John William's youngest son who had finished a bricklaying course. The corner shop – demolished a long time ago – was often frequented by the Hodkinsons. (The 1973 photograph is the property of Samuel Hodkinson who took the second image.)
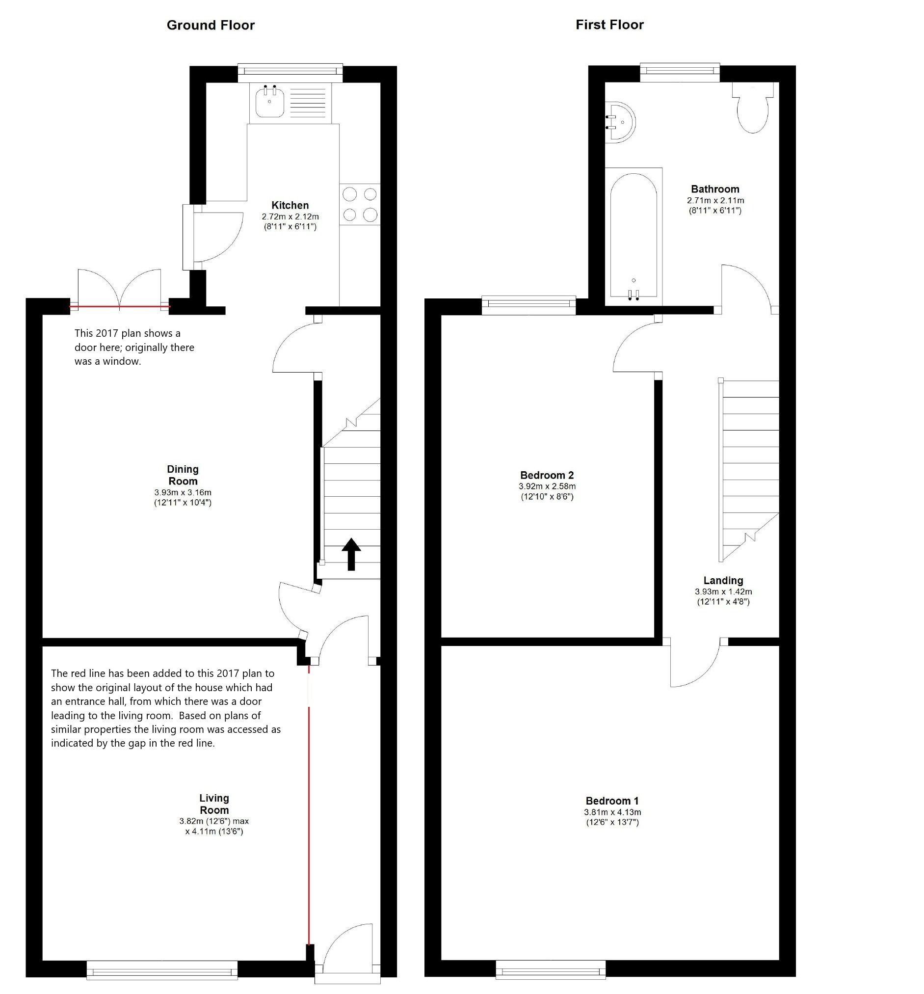
61 Adswood Road West is a two-up, two-down house, the floor plans of which are unchanged since the house was built, except that the wall separating the entrance hallway from the living room has been removed to create a larger living space; and a window at the back of the dining room has been replaced by a door. Making the living room bigger by removing the hall wall means that entrance to the house is directly into the living room, but the gain in extra space makes it well worthwhile. The plans above are from the local branch of an estate agency (Edward Mellor) which were published when the house was on sale in 2017. I don’t know to what extent the modern interior kitchen and bathroom layouts reflect original layouts. Click on the image for a larger, readable version!
The Hodkinsons lived at 61 Adswood Lane West from about 1911. This home was occupied, for some or all of the time, by:
- John William Hodkinson (born 1869), head of household;
- Frances Eliza Hodkinson (born 1872), wife of John William Hodkinson;
- George Albert Hodkinson (born 1897), first son of John William Hodkinson and Frances Eliza Hodkinson;
- John Hodkinson (born 1901), third son of John William Hodkinson and Frances Eliza Hodkinson.
- Steven Hodkinson (born 1905), fourth son of John William Hodkinson and Frances Eliza Hodkinson.
Bearing in mind how frequently the Hodkinsons had moved home in the past century, it is remarkable that for almost fifty years various members of the family would continue to live at the same address.
A room with a view
61 Adswood Lane West is the first Hodkinson home where photographs were taken – but there are not many. Two of the photographs show a view from the front upstairs bedroom, one taken in 1941 whilst the other is undated. The boundary post, indicated on the photographs and map below, is a handy reference point.
The two black and white photographs were taken from the front bedroom of 61 Adswood Lane West by John William Hodkinson's youngest son. The first photograph was taken in July 1941; the second photograph is undated. In the second photograph, the sign says "Frank Hammond. General Carrier. 52 Ivy Place Adswood Lane West." Note on both photographs the boundary post set into the wall which is marked on the map below as "B.P." and is highlighted with red ovals. (Photographs: property of Samuel Hodkinson.)
A back room with a view
This photograph is undated. I managed to improve the quality of the original, but not to the extent that I would have liked. Still, it is the only photograph I have of the view from one of the upstairs back windows of 61 Adswood Lane West, a view that various Hodkinsons had for up to 48 years of living in the house. The house on the right is the back of no.2 on Warren Road – see maps above. (Photograph: property of Samuel Hodkinson.)
November 1959 – 61 Adswood Lane goes for sale
This advert is from the Alderley and Wilmslow Advertiser of 28th November 1959. Various Hodkinsons lived at 61 Adswood Lane West for about 48 years. They never owned the house, being long, long-term tenants. It was certainly an achievement, in its own right, to rent the same property for almost five decades. The Hodkinsons finally left the house in 1959 and maybe it was a coincidence that the house was put up for sale at about the same time as they left, or perhaps the owner thought that, with the Hodkinsons leaving, it was a good time to sell the house as an empty property. The house was, and is, a leasehold property (like many in the area), with the never-changing yearly ground rent at £2.50 and with a lease that is so long that it is regarded as a "virtual freehold". In fact, the lease runs out on Christmas Day, 2779. Yes, the year 2779 ... what can you say?
Eighteen homes
I had a quick look at a few websites which give data about house moves and they state that the average number of homes that a 21st century UK citizen will occupy in his/her lifetime as eight ... or 11 ... or 16 ... and so on. Another site said that on average people move every 23 years – can that be really true? I also had a quick look for information about the frequency of house moves in Victorian Britain. One somewhat useless AI generated response was that families moved relatively frequently, sometimes every few years. Doubtless there is some research somewhere which has definite figures for specific years, and which takes into account variables such as location, social class, and occupation.
With John William’s 18 homes, it needs to kept in mind that he lived in 17 of those homes in the first 40 years of his life, which meant that, on average, he moved house every 28 months between 1869 and 1909. To me, that does not seem excessive, but I have nothing to compare that information against – except for my history of house moves. I have a trail, so far, of 20 different addresses, some of which were very short stays. From that point of view, John William’s frequency of moving home was not unusual!
Just to repeat the information from the top of this page (it is a long scroll back!) ... the four pages about John William Hodkinson are as follows:
John William Hodkinson: 1869-1896 – birth to marriage
John William Hodkinson: 1896-1942 – marriage to death
John William Hodkinson: 1900-1917 – three times a soldier
John William Hodkinson: 1869-1942 – eighteen homes ... this page
Bottom of the page information
Latest update
This page was originally published on 24th March 2018. The latest updates – mainly some additional information about the Hodkinsons' home at 61 Adswood Lane West, Stockport – were completed by Sunday 22nd February 2026.
















































